Розсилка
    Відповідні проєкти: 0
    Будинок в тим'яні 3 вер.2
    46 020 UAH

    Проєкт будинку ARCHON+ Будинок в тим'яні 3 вер.2 Вид 1

    - 4500 UAH
    Проєкт будинку ARCHON+ Будинок в тим'яні 3 вер.2 Вид 1 1/13
    Ціна проєкту:
    41 520 UAH 46 020 UAH
    Проєкт доступний на замовлення
    ДО КІНЦЯ АКЦІЇ ЗАЛИШИЛОСЯ ЩЕ

    Що входить до складу проєкту?


    односімейний котедж одноповерховий з житловою мансардою
    гараж, 5 кімнат, 1 кухня, 3 ванни, комора, 1 котельня, гардеробна


    Корисна
    площа
    156.22 м2
    Загальна
    площа
    277.43 м2
    кімнат
    5
    кухня
    1
    туалет
    0
    ванни
    3
    гараж
    1

    Увага! Тільки оригінальний проєкт, куплений в компанії «Архон Україна» і у офіційних дилерів, дає Вам гарантію якості і чітке керівництво над будівництвом будинку. Також Ви отримуєте можливість безкоштовно консультуватися у наших фахівців на будь-якому етапі будівництва. Переконайтеся в оригінальності проєкту!

    План першого поверху
    Допасуйте до своєї ділянки
    Перший поверх 107.90 (110.60)
    1. Тамбур 3.75
    2. Хол 10.33 (13.03)
    3. Котельня з пральнею 7.04
    4. Кімната 9.85
    5. Ванна кімната 3.49
    6. Сходи 3.28
    7. Вітальня 35.59
    8. Кухня 13.37
    9. Комора 1.58
    10. Гараж 19.62
    План мансарди
    Мансарда 74.98 (104.17)
    1. Сходовий майданчик 3.53 (3.53)
    2. Ванна кімната 7.12 (14.21)
    3. Хол 7.10 (7.10)
    4. Кімната 12.41 (14.26)
    5. Гардероб 3.46 (8.84)
    6. Кімната 14.24 (15.46)
    7. Гардероб 4.57 (10.48)
    8. Кімната 17.80 (19.13)
    9. Ванна кімната 4.75 (11.16)
    Поверхні
    Корисна площа 156.22 м2
    Поверхня котельні 7.04 м2
    Площа гаража 19.62 м2
    Площа будівництва 141.2 м2
    Площа підлоги 214.77 м2
    Загальна площа 277.43 м2
    Кубатура 895.62 м3
    Висота будинку 8.88 м
    Технологія і конструкція
    Стіни пустотілий керамічний блок 25 см, пінопласт 20 см, штукатурка.
    Конструкція зовнішніх і внутрішніх стін може бути виконана з будь-якого матеріалу (керамічних або газобетонних блоків), з технічними параметрами не нижчими за ті, що зазначені в проєктних рішеннях. Зміна матеріалів має бути узгоджена з адаптаційним архітектором.
    Перекриття Монолітне залізобетонне (відливається за місцем)
    Колінна стінка 88 см
    Дах 4-скатний, Схил 38° , Кроквяна система дерев'яна, покрівля з керамічної черепиці
    Котел газовий, можливість заміни котлом на твердому паливі після адаптації
    Тепла підлога використовується в таких приміщеннях: Перший поверх: Тамбур (1), Ванна кімната (5), Кухня (8); Мансарда: Ванна кімната (2), Ванна кімната (9)
    Вентиляція гравітаційна
    Фасад Будинок в тим'яні 3 вер.2
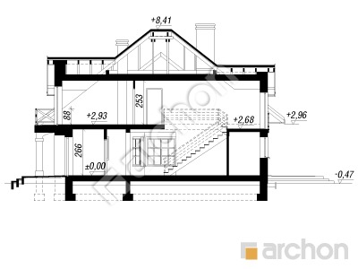
    Розріз
    Проєкт будинку ARCHON+ Будинок в тим'яні 3 вер.2 Розріз будинку
    Контур будівлі
    Проєкт будинку ARCHON+ Будинок в тим'яні 3 вер.2 Ситуація

    Будинок в тим'яні 3 вер.2 - це проєкт будинку, що вдало поєднує традиційну форму з шатровим дахом зі зручним та функціональним інтер'єром. На першому поверсі розташована житлова зона: велика вітальня з каміном, їдальня та відкрита кухня з коморою. Все це виглядає дуже привабливо, а скляні двері на терасу створюють плавний зв'язок між житловою зоною та садом. На протилежному боці зали ми спроєктували гараж та котельну, а далі – ванну кімнату та відокремлену кімнату. Сходами, що ведуть від входу, ми піднімаємося нагору, де знаходиться ванна кімната і три кімнати, кожна з яких має балкон. Гарна та зручна спальня з двоспальним ліжком, з приголомшливими широкими балконними дверима, також має власну ванну кімнату та вбиральню. Цікавий формою проєкт будинку, характер якого підкреслює стильний, розташований у центрі, критий вхід та цікаві архітектурні деталі.

    Подібні проєкти:

    Підпишіться на розсилку АРХОН Україна

    Підписатися на розсилку!
    Чат з консультантом