Розсилка
    Відповідні проєкти: 0
    Будинок в аурорах 5
    43 030 UAH

    Проєкт будинку ARCHON+ Будинок в аурорах 5 Вид 1

    - 3500 UAH
    Проєкт будинку ARCHON+ Будинок в аурорах 5 Вид 1 1/24
    Ціна проєкту:
    39 530 UAH 43 030 UAH
    Проєкт доступний на замовлення
    ДО КІНЦЯ АКЦІЇ ЗАЛИШИЛОСЯ ЩЕ
    1День18Годин57Хвилин42Секунд

    Що входить до складу проєкту?


    односімейний котедж одноповерховий з житловою мансардою
    6 кімнат, 1 кухня, 2 ванни, комора, 1 котельня, пральня, гардеробна, господарське приміщення


    Корисна
    площа
    159.16 м2
    Загальна
    площа
    248.54 м2
    кімнат
    6
    кухня
    1
    туалет
    0
    ванни
    2

    Увага! Тільки оригінальний проєкт, куплений в компанії «Архон Україна» і у офіційних дилерів, дає Вам гарантію якості і чітке керівництво над будівництвом будинку. Також Ви отримуєте можливість безкоштовно консультуватися у наших фахівців на будь-якому етапі будівництва. Переконайтеся в оригінальності проєкту!

    План першого поверху
    Допасуйте до своєї ділянки
    Перший поверх 91.76 (94.07)
    1. Тамбур 5.53
    2. Хол 10.43 (12.74)
    3. Комора 2.39
    4. Кухня 15.27
    5. Вітальня + їдальня 35.53
    6. Кімната 10.39
    7. Ванна кімната 3.38
    8. Господарське приміщення 1.95
    9. Котельня 6.89
    План мансарди
    Мансарда 74.29 (94.56)
    1. Хол і сходи 11.96
    2. Кімната 13.06 (14.59)
    3. Кімната 15.29 (17.87)
    4. Гардероб 5.49 (6.58)
    5. Кімната 10.72 (15.94)
    6. Ванна кімната 8.34 (9.88)
    7. Пральня 3.52 (6.80)
    8. Кімната 5.91 (10.94)
    Поверхні
    Корисна площа 159.16 м2
    Поверхня котельні 6.89 м2
    Площа будівництва 124.27 м2
    Площа підлоги 188.63 м2
    Загальна площа 248.54 м2
    Кубатура 826.16 м3
    Висота будинку 8.61 м
    Технологія і конструкція
    Стіни пустотілий керамічний блок 25 см, пінопласт 20 см, штукатурка.
    Конструкція зовнішніх і внутрішніх стін може бути виконана з будь-якого матеріалу (керамічних або газобетонних блоків), з технічними параметрами не нижчими за ті, що зазначені в проєктних рішеннях. Зміна матеріалів має бути узгоджена з адаптаційним архітектором.
    Перекриття Монолітне залізобетонне (відливається за місцем)
    Колінна стінка 140 см
    Дах 2-скатний, Схил 40° , Кроквяна система дерев'яна, покрівля з керамічної черепиці
    Котел на твердому паливі + як варіант, газовий
    Тепла підлога використовується в таких приміщеннях: Перший поверх: Тамбур (1), Хол (2), Кухня (4), Вітальня + їдальня (5), Ванна кімната (7); Мансарда: Ванна кімната (6)
    Вентиляція гравітаційна
    Фасад Будинок в аурорах 5
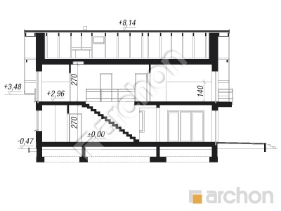
    Розріз
    Проєкт будинку ARCHON+ Будинок в аурорах 5 Розріз будинку
    Контур будівлі
    Проєкт будинку ARCHON+ Будинок в аурорах 5 Ситуація

    Будинок в аурорах 5 Це цікава пропозиція з категорії: проєкти будинків з мансардою, що відрізняються дуже функціональним розташуванням кімнат та ефектним зовнішнім виглядом фасаду будинку. Зовнішня обробка, що базується на поєднанні штукатурки та натурального облицювання, підкреслює в будинок у сучасному стилі. Також характер будинку передають скляні балюстради, кутове вікно та плоска антрацитова плитка. Дуже приваблива зона відпочинку розроблена на кутовій, частково закритій терасі, де ми можемо відпочити на сонці, а також тут є тихе місце для облаштування літньої їдальні. Функціональне планування першого поверху включає простору денну зону з великою вітальнею, сполученою з красиво освітленою їдальнею, з виходом на терасу, та просторою кухнею. Дуже зручний та оптимально організований простір, в якому можна забудувати практичні високі кухонні меблі та великий кухонний півострів з додатковим місцем для прийому їжі. Функціональність кухні збільшується за рахунок сусідньої комори. Також на першому поверсі спроєктовано додаткову кімнату, розташовану в тихій частині будинку, яка забезпечує комфортні умови для роботи чи спальні для гостей. Поруч є ванна кімната з душем. Невелике господарське приміщення практично відокремлює житлову зону від котельні на твердому паливі. Дуже вражаючим елементом інтер'єру "Будинок в аурорах 5" є одномаршеві сходи, що ведуть на мансарду. Функціональне планування мансарди включає чотири зручні спальні, включаючи кімнату батьків з просторою гардеробною. В інших спальнях ви можете встановити просторі шафи для одягу, а в повністю обладнаній, зручній ванній кімнаті ми маємо місце для великого сучасного душу. Комунальна програма будинку також включає пральню з функцією сушіння. Цей привабливий проєкт будинку належить до колекції: проєкти будинків в сучасному стилі і доповнює популярну родину "Будинків в аурорах".

    Реалізації проєкту Будинок в аурорах 5
    Подібні проєкти:

    Підпишіться на розсилку АРХОН Україна

    Підписатися на розсилку!
    Чат з консультантом