Розсилка
    Відповідні проєкти: 0
    Будинок в гунерах 2 (Р2) вер.2
    63 950 UAH

    Проєкт будинку ARCHON+ Будинок в гунерах 2 (Р2) вер.2 Вид 1

    - 4000 UAH
    Проєкт будинку ARCHON+ Будинок в гунерах 2 (Р2) вер.2 Вид 1 1/12
    Ціна проєкту:
    59 950 UAH 63 950 UAH
    Проєкт доступний на замовлення
    ДО КІНЦЯ АКЦІЇ ЗАЛИШИЛОСЯ ЩЕ

    Що входить до складу проєкту?


    двосімейний котедж одноповерховий з житловою мансардою
    гараж, 10 кімнат, 2 кухні, 2 ванни, 2 туалет, 2 котельня, пральня, гардеробна


    Корисна
    площа
    212.32 м2
    Загальна
    площа
    361.40 м2
    кімнат
    10
    кухні
    2
    туалет
    2
    ванни
    2
    гараж
    2

    Увага! Тільки оригінальний проєкт, куплений в компанії «Архон Україна» і у офіційних дилерів, дає Вам гарантію якості і чітке керівництво над будівництвом будинку. Також Ви отримуєте можливість безкоштовно консультуватися у наших фахівців на будь-якому етапі будівництва. Переконайтеся в оригінальності проєкту!

    План першого поверху
    Допасуйте до своєї ділянки
    Перший поверх 130.50 (132.34)
    1. Тамбур 5.09
    2. Вітальня + їдальня 25.79
    3. Кухня 9.06
    4. Туалет 1.36 (2.28)
    5. Котельня 6.05
    6. Гараж 17.90
    7. Тамбур 5.09
    8. Вітальня + їдальня 25.79
    9. Кухня 9.06
    10. Туалет 1.36 (2.28)
    11. Котельня 6.05
    12. Гараж 17.90
    План мансарди
    Мансарда 129.72 (140.64)
    1. Хол 7.07
    2. Кімната 8.51 (9.48)
    3. Кімната 8.85 (9.82)
    4. Гардероб 3.29
    5. Кімната 14.30 (14.93)
    6. Кімната 9.32 (10.89)
    7. Ванна кімната 5.78 (7.10)
    8. Пральня 2.70
    9. Сходи 5.04
    10. Хол 7.07
    11. Кімната 8.51 (9.48)
    12. Кімната 8.85 (9.82)
    13. Гардероб 3.29
    14. Кімната 14.30 (14.93)
    15. Кімната 9.32 (10.89)
    16. Ванна кімната 5.78 (7.10)
    17. Пральня 2.70
    18. Сходи 5.04
    Поверхні
    Корисна площа 212.32 м2
    Поверхня котельні 12.1 м2
    Площа гаража 35.8 м2
    Площа будівництва 183.25 м2
    Площа підлоги 272.98 м2
    Загальна площа 361.4 м2
    Кубатура 1256.97 м3
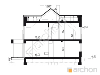
    Висота будинку 8.54 м
    Технологія і конструкція
    Стіни комірчастий бетон 24 см, пінопласт 20 см, штукатурка.
    Конструкція зовнішніх і внутрішніх стін може бути виконана з будь-якого матеріалу (керамічних або газобетонних блоків), з технічними параметрами не нижчими за ті, що зазначені в проєктних рішеннях. Зміна матеріалів має бути узгоджена з адаптаційним архітектором.
    Перекриття Монолітне залізобетонне (відливається за місцем)
    Колінна стінка 140 см
    Дах 2-скатний, Схил 38° , Кроквяна система дерев'яна, покрівля з жерсті
    Котел translation missing: ua.variant.3777.9
    Тепла підлога застосовано у всіх житлових приміщеннях
    Вентиляція гравітаційна
    Фасад Будинок в гунерах 2 (Р2) вер.2
    Розріз
    Проєкт будинку ARCHON+ Будинок в гунерах 2 (Р2) вер.2 Розріз будинку
    Контур будівлі
    Проєкт будинку ARCHON+ Будинок в гунерах 2 (Р2) вер.2 Ситуація
    Подібні проєкти:

    Підпишіться на розсилку АРХОН Україна

    Підписатися на розсилку!
    Чат з консультантом