Розсилка
    Відповідні проєкти: 0
    Будинок в тамариску 2 (Г2Н)
    48 860 UAH

    Проєкт будинку ARCHON+ Будинок в тамариску 2 (Г2Н) Вид 1

    - 4500 UAH
    Проєкт будинку ARCHON+ Будинок в тамариску 2 (Г2Н) Вид 1 1/13
    Ціна проєкту:
    44 360 UAH 48 860 UAH
    Проєкт доступний на замовлення
    ДО КІНЦЯ АКЦІЇ ЗАЛИШИЛОСЯ ЩЕ

    Що входить до складу проєкту?


    односімейний котедж одноповерховий з житловою мансардою
    гараж, 6 кімнат, 1 кухня, 3 ванни, комора, 1 котельня, пральня, гардеробна, господарське приміщення


    Корисна
    площа
    172.82 м2
    Загальна
    площа
    307.04 м2
    кімнат
    6
    кухня
    1
    туалет
    0
    ванни
    3
    гараж
    2

    Увага! Тільки оригінальний проєкт, куплений в компанії «Архон Україна» і у офіційних дилерів, дає Вам гарантію якості і чітке керівництво над будівництвом будинку. Також Ви отримуєте можливість безкоштовно консультуватися у наших фахівців на будь-якому етапі будівництва. Переконайтеся в оригінальності проєкту!

    План першого поверху
    Допасуйте до своєї ділянки
    Перший поверх 118.32 (119.77)
    1. Тамбур 3.12
    2. Коридор 3.54
    3. Ванна кімната 4.12
    4. Комора 1.69
    5. Кухня 9.73
    6. Вітальня 30.18
    7. Хол 6.09
    8. Сходи 1.30
    9. Кімната 9.31
    10. Сховище 0.22 (1.67)
    11. Господарське приміщення 7.24
    12. Котельня 7.55
    13. Гараж 34.23
    План мансарди
    Мансарда 96.28 (115.27)
    1. Хол 4.47 (4.47)
    2. Кімната 9.52 (11.31)
    3. Кімната 15.81 (17.56)
    4. Кімната 17.68 (19.55)
    5. Ванна кімната 9.63 (10.57)
    6. Сходи 3.57 (3.57)
    7. Передпокій 1.79 (1.79)
    8. Пральня 4.93 (8.87)
    9. Ванна кімната 4.36 (6.73)
    10. Кімната 19.89 (23.77)
    11. Гардероб 4.63 (7.08)
    Поверхні
    Корисна площа 172.82 м2
    Поверхня котельні 7.55 м2
    Площа гаража 34.23 м2
    Площа будівництва 155.87 м2
    Площа підлоги 235.04 м2
    Загальна площа 307.04 м2
    Кубатура 1031.85 м3
    Висота будинку 8.88 м
    Технологія і конструкція
    Стіни пустотілий керамічний блок 25 см, пінопласт 20 см, штукатурка.
    Конструкція зовнішніх і внутрішніх стін може бути виконана з будь-якого матеріалу (керамічних або газобетонних блоків), з технічними параметрами не нижчими за ті, що зазначені в проєктних рішеннях. Зміна матеріалів має бути узгоджена з адаптаційним архітектором.
    Перекриття Монолітне залізобетонне (відливається за місцем)
    Колінна стінка 125 см
    Дах 2-скатний, Схил 42° , 35° , Кроквяна система дерев'яна, покрівля з керамічної черепиці
    Котел на твердому паливі + як варіант, газовий
    Тепла підлога використовується в таких приміщеннях: Перший поверх: Тамбур (1), Ванна кімната (3), Кухня (5); Мансарда: Ванна кімната (5), Ванна кімната (9)
    Вентиляція гравітаційна
    Фасад Будинок в тамариску 2 (Г2Н)
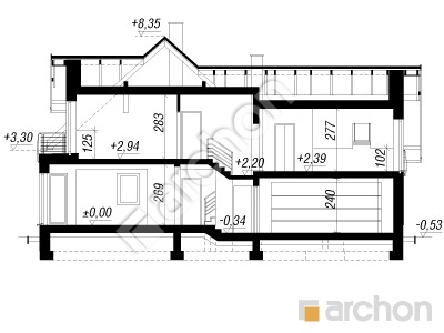
    Розріз
    Проєкт будинку ARCHON+ Будинок в тамариску 2 (Г2Н) Розріз будинку
    Контур будівлі
    Проєкт будинку ARCHON+ Будинок в тамариску 2 (Г2Н) Ситуація

    Проєкт комфортабельного будинку з простим корпусом, який відрізняється цікавим оздобленням фасаду та надзвичайно функціональним внутрішнім плануванням. Житлова зона є просторою і світлою вітальнею з місцем для комфортного відпочинку перед каміном і домашнім кінотеатром, а також їдальню, розташовану в заскленому еркері. Відкрита кухня з'єднується з обідньою зоною через барну стійку, поряд з якою знаходиться практична комора. Додаткова кімната з виходом на терасу ідеально підходить як кабінет. До господарської частини будинку можна потрапити з передпокою - комора, великий гараж, котельня на твердому паливі та підсобне приміщення з окремим виходом. Зручні сходи ведуть у нічну зону у мансарді. Тут були спроєктовані чотири добре розташовані та світлі спальні, велика ванна кімната та пральня. Кімната батьків над гаражем була спроєктована як окрема житлова площа - з власною гардеробною та ванною кімнатою. Цей проєкт відноситься до популярних категорій: проєкти сучасних будинків та будинків з додатковою кімнатою на першому поверсі.

    Реалізації проєкту Будинок в тамариску 2 (Г2Н)
    Подібні проєкти:

    Підпишіться на розсилку АРХОН Україна

    Підписатися на розсилку!
    Чат з консультантом