Розсилка
    Відповідні проєкти: 0
    Будинок в кортланді (Г)
    43 030 UAH

    Проєкт будинку ARCHON+ Будинок в кортланді (Г) Вид 1

    - 4500 UAH
    Проєкт будинку ARCHON+ Будинок в кортланді (Г) Вид 1 1/11
    Ціна проєкту:
    38 530 UAH 43 030 UAH
    Проєкт доступний на замовлення
    ДО КІНЦЯ АКЦІЇ ЗАЛИШИЛОСЯ ЩЕ

    Що входить до складу проєкту?


    односімейний котедж одноповерховий з житловою мансардою
    гараж, горище, 5 кімнат, 1 кухня, 2 ванни, комора, 1 котельня, пральня, гардеробна


    Корисна
    площа
    146.27 м2
    Загальна
    площа
    261.18 м2
    кімнат
    5
    кухня
    1
    туалет
    0
    ванни
    2
    гараж
    1

    Увага! Тільки оригінальний проєкт, куплений в компанії «Архон Україна» і у офіційних дилерів, дає Вам гарантію якості і чітке керівництво над будівництвом будинку. Також Ви отримуєте можливість безкоштовно консультуватися у наших фахівців на будь-якому етапі будівництва. Переконайтеся в оригінальності проєкту!

    План першого поверху
    Допасуйте до своєї ділянки
    Перший поверх 96.87 (99.48)
    1. Тамбур 4.41
    2. Комора 2.12
    3. Кухня 9.26
    4. Вітальня + їдальня 35.51
    5. Сходи 4.05
    6. Передпокій 2.48 (4.95)
    7. Кімната 9.83
    8. Ванна кімната 3.97 (4.11)
    9. Котельня 3.84
    10. Гараж 21.40
    План мансарди
    Мансарда 75.63 (98.13)
    1. Хол і сходи 11.72
    2. Пральня 6.16 (7.61)
    3. Кімната 12.07 (14.01)
    4. Гардероб 3.65 (5.38)
    5. Кімната 14.66
    6. Гардероб 4.55 (7.37)
    7. Кімната 13.50 (13.78)
    8. Ванна кімната 8.33 (10.82)
    9. Утеплене горище 0.99 (12.78)
    Поверхні
    Корисна площа 146.27 м2
    Поверхня котельні 3.84 м2
    Площа гаража 21.4 м2
    Площа горища 0.99 м2
    Площа будівництва 134.61 м2
    Площа підлоги 197.61 м2
    Загальна площа 261.18 м2
    Кубатура 920.4 м3
    Висота будинку 8.8 м
    Технологія і конструкція
    Стіни пустотілий керамічний блок 25 см, пінопласт 20 см, штукатурка.
    Конструкція зовнішніх і внутрішніх стін може бути виконана з будь-якого матеріалу (керамічних або газобетонних блоків), з технічними параметрами не нижчими за ті, що зазначені в проєктних рішеннях. Зміна матеріалів має бути узгоджена з адаптаційним архітектором.
    Перекриття Монолітне залізобетонне (відливається за місцем)
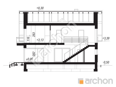
    Колінна стінка 116 см
    Дах 2-скатний, Схил 38° , Кроквяна система дерев'яна, покрівля з керамічної черепиці
    Котел газовий
    Тепла підлога використовується в таких приміщеннях: Перший поверх: Тамбур (1), Кухня (3), Вітальня + їдальня (4), Передпокій (6), Кімната (7), Ванна кімната (8), Котельня (9); Мансарда: Ванна кімната (8)
    Вентиляція гравітаційна
    Фасад Будинок в кортланді (Г)
    Розріз
    Проєкт будинку ARCHON+ Будинок в кортланді (Г) Розріз будинку
    Контур будівлі
    Проєкт будинку ARCHON+ Будинок в кортланді (Г) Ситуація
    Реалізації проєкту Будинок в кортланді (Г)
    Подібні проєкти:

    Підпишіться на розсилку АРХОН Україна

    Підписатися на розсилку!
    Чат з консультантом