Розсилка
    Відповідні проєкти: 0
    Будинок в каллах 5 (Н)
    51 510 UAH

    Проєкт будинку ARCHON+ Будинок в каллах 5 (Н) Вид 1

    - 3500 UAH
    Проєкт будинку ARCHON+ Будинок в каллах 5 (Н) Вид 1 1/10
    Ціна проєкту:
    48 010 UAH 51 510 UAH
    Проєкт доступний на замовлення
    ДО КІНЦЯ АКЦІЇ ЗАЛИШИЛОСЯ ЩЕ

    Що входить до складу проєкту?


    односімейний котедж одноповерховий з житловою мансардою
    гараж, 6 кімнат, 1 кухня, 2 ванни, комора, 1 котельня, пральня, гардеробна


    Корисна
    площа
    211.67 м2
    Загальна
    площа
    361.32 м2
    кімнат
    6
    кухня
    1
    туалет
    0
    ванни
    2
    гараж
    1

    Увага! Тільки оригінальний проєкт, куплений в компанії «Архон Україна» і у офіційних дилерів, дає Вам гарантію якості і чітке керівництво над будівництвом будинку. Також Ви отримуєте можливість безкоштовно консультуватися у наших фахівців на будь-якому етапі будівництва. Переконайтеся в оригінальності проєкту!

    План першого поверху
    Допасуйте до своєї ділянки
    Перший поверх 139.46 (141.78)
    1. Тамбур 6.96
    2. Хол 3.77
    3. Ванна кімната 6.92
    4. Пральня 9.08 (11.40)
    5. Гараж 22.20
    6. Котельня з пральнею 7.37
    7. Кабінет 16.68
    8. Вітальня + їдальня 50.49
    9. Кухня 13.89
    10. Комора 2.10
    План мансарди
    Мансарда 101.78 (141.05)
    1. Сходи 5.58 (5.58)
    2. Кімната 13.48 (20.80)
    3. Гардероб 2.81 (9.00)
    4. Хол 8.66 (8.66)
    5. Кімната 16.43 (17.98)
    6. Гардероб 6.12 (11.88)
    7. Гардероб 3.12 (3.12)
    8. Кімната 19.40 (25.14)
    9. Кімната 15.86 (17.86)
    10. Гардероб 3.40 (7.81)
    11. Ванна кімната 6.92 (13.22)
    Поверхні
    Корисна площа 211.67 м2
    Поверхня котельні 7.37 м2
    Площа гаража 22.2 м2
    Площа будівництва 184.95 м2
    Площа підлоги 282.83 м2
    Загальна площа 361.32 м2
    Кубатура 1167.69 м3
    Висота будинку 9.03 м
    Технологія і конструкція
    Стіни пустотілий керамічний блок 25 см, пінопласт 20 см, штукатурка.
    Конструкція зовнішніх і внутрішніх стін може бути виконана з будь-якого матеріалу (керамічних або газобетонних блоків), з технічними параметрами не нижчими за ті, що зазначені в проєктних рішеннях. Зміна матеріалів має бути узгоджена з адаптаційним архітектором.
    Перекриття Монолітне залізобетонне (відливається за місцем)
    Колінна стінка 100 см
    Дах 4-скатний, Схил 38° , Кроквяна система дерев'яна, покрівля з керамічної черепиці
    Котел на твердому паливі + як варіант, газовий
    Тепла підлога використовується в таких приміщеннях: Перший поверх: Тамбур (1), Ванна кімната (3), Кухня (9); Мансарда: Ванна кімната (11)
    Вентиляція гравітаційна
    Фасад Будинок в каллах 5 (Н)
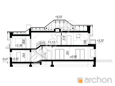
    Розріз
    Проєкт будинку ARCHON+ Будинок в каллах 5 (Н) Розріз будинку
    Контур будівлі
    Проєкт будинку ARCHON+ Будинок в каллах 5 (Н) Ситуація
    Подібні проєкти:

    Підпишіться на розсилку АРХОН Україна

    Підписатися на розсилку!
    Чат з консультантом