Розсилка
    Відповідні проєкти: 0
    Будинок в ізопірумі 10
    39 480 UAH

    Проєкт будинку ARCHON+ Будинок в ізопірумі 10 Вид 1

    - 4500 UAH
    Проєкт будинку ARCHON+ Будинок в ізопірумі 10 Вид 1 1/26
    Ціна проєкту:
    34 980 UAH 39 480 UAH
    Проєкт доступний на замовлення
    ДО КІНЦЯ АКЦІЇ ЗАЛИШИЛОСЯ ЩЕ

    Що входить до складу проєкту?


    односімейний котедж одноповерховий з житловою мансардою
    гараж, 5 кімнат, 1 кухня, 2 ванни, комора, 1 котельня, пральня


    Корисна
    площа
    117.96 м2
    Загальна
    площа
    209.25 м2
    кімнат
    5
    кухня
    1
    туалет
    0
    ванни
    2
    гараж
    1

    Увага! Тільки оригінальний проєкт, куплений в компанії «Архон Україна» і у офіційних дилерів, дає Вам гарантію якості і чітке керівництво над будівництвом будинку. Також Ви отримуєте можливість безкоштовно консультуватися у наших фахівців на будь-якому етапі будівництва. Переконайтеся в оригінальності проєкту!

    План першого поверху
    Допасуйте до своєї ділянки
    Перший поверх 73.02 (75.27)
    1. Тамбур 5.35
    2. Хол 3.02
    3. Ванна кімната 3.43
    4. Вітальня + їдальня 25.16
    5. Кухня 10.17
    6. Комора 2.07
    7. Котельня 4.39
    8. Гараж 19.43 (21.68)
    План мансарди
    Мансарда 68.76 (83.38)
    1. Сходи 3.40
    2. Коридор 8.45
    3. Ванна кімната 8.18 (9.87)
    4. Кімната 10.68 (12.37)
    5. Кімната 10.74 (11.77)
    6. Кімната 11.18 (14.42)
    7. Кімната 9.67 (12.90)
    8. Пральня 6.46 (10.20)
    Поверхні
    Корисна площа 117.96 м2
    Поверхня котельні 4.39 м2
    Площа гаража 19.43 м2
    Площа будівництва 108.42 м2
    Площа підлоги 158.65 м2
    Загальна площа 209.25 м2
    Кубатура 706.74 м3
    Висота будинку 8.31 м
    Технологія і конструкція
    Стіни комірчастий бетон 24 см, пінопласт 20 см, штукатурка.
    Конструкція зовнішніх і внутрішніх стін може бути виконана з будь-якого матеріалу (керамічних або газобетонних блоків), з технічними параметрами не нижчими за ті, що зазначені в проєктних рішеннях. Зміна матеріалів має бути узгоджена з адаптаційним архітектором.
    Перекриття Монолітне залізобетонне (відливається за місцем)
    Колінна стінка 99 см
    Дах 2-скатний, Схил 40° , Кроквяна система дерев'яна, покрівля з керамічної черепиці
    Котел на твердому паливі + як варіант, газовий
    Тепла підлога використовується в таких приміщеннях: Перший поверх: Тамбур (1), Хол (2), Ванна кімната (3), Вітальня + їдальня (4), Кухня (5); Мансарда: Ванна кімната (3)
    Вентиляція гравітаційна
    Фасад Будинок в ізопірумі 10
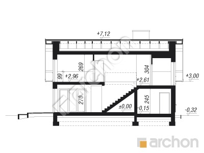
    Розріз
    Проєкт будинку ARCHON+ Будинок в ізопірумі 10 Розріз будинку
    Контур будівлі
    Проєкт будинку ARCHON+ Будинок в ізопірумі 10 Ситуація

    Ще одна цікава пропозиція від популярного спрямування "Будинок в ізопірумі 10". Вхідна зона будівлі акцентована мансардним поверхом і має практичний дах. Поєднання білої штукатурки з атмосферним, натуральним облицюванням підкреслює сучасний характер будинку. В тіні, з боку саду, спроєктована затишна крита тераса, яка є ідеальним місцем для кавового куточку або обідньої зони на відкритому повітрі. Вітальня прикрашена кутовим вікном і каміном, що забезпечує затишну атмосферу в інтер'єрі. Їдальня, повна природного світла, вміщує великий стіл і має прямий вихід на терасу. Простір кухні чітко розділено, з дуже зручним функціональним розташуванням і додатковим місцем для зберігання в прилеглій комори. З кухні мешканці мають прямий доступ в літню їдальню на терасі. Ванна кімната, спроєктована на першому поверсі, вміщає велику сучасну душову кабіну. Одномісний гараж і котельня на твердому паливі є підсобними приміщеннями будинку, доступними через тамбур. Функціональна мансарда являє собою комфортний простір будинку, де в розпорядженні мешканців чотири спальні, включаючи кімнату батьків з балконом, велика ванна кімната з розкішною обстановкою, а також простора пральня, де також зручно сушити і прасувати одяг. "Будинок в ізопірумі 10" відноситься до категорії: проєкти будинків в сучасному стилі, проєкти будинків зі входом з півдня, проєкти будинків з гаражем на одну машину. У колекції "Ізопірум" ми також рекомендуємо інші версії таких проєктів, як: "Будинок в ізопірумі 5" - з додатковою кімнатою на першому поверсі, "Будинок в ізопірумі (П)" - з гаражем на одну машину і підвалом, "Будинок в ізопірумі 8 (Г2)". - з гаражем на дві машини.

    Реалізації проєкту Будинок в ізопірумі 10
    Подібні проєкти:

    Підпишіться на розсилку АРХОН Україна

    Підписатися на розсилку!
    Чат з консультантом