Розсилка
    Відповідні проєкти: 0
    Будинок в айдаредах вер.2
    43 030 UAH

    Проєкт будинку ARCHON+ Будинок в айдаредах вер.2 Вид 1

    - 4200 UAH
    Проєкт будинку ARCHON+ Будинок в айдаредах вер.2 Вид 1 1/31
    Ціна проєкту:
    38 830 UAH 43 030 UAH
    Проєкт доступний на замовлення
    ДО КІНЦЯ АКЦІЇ ЗАЛИШИЛОСЯ ЩЕ

    Що входить до складу проєкту?


    односімейний котедж одноповерховий з житловою мансардою
    гараж, 5 кімнат, 1 кухня, 2 ванни, 1 котельня, пральня, гардеробна


    Корисна
    площа
    125.56 м2
    Загальна
    площа
    226.70 м2
    кімнат
    5
    кухня
    1
    туалет
    0
    ванни
    2
    гараж
    1

    Увага! Тільки оригінальний проєкт, куплений в компанії «Архон Україна» і у офіційних дилерів, дає Вам гарантію якості і чітке керівництво над будівництвом будинку. Також Ви отримуєте можливість безкоштовно консультуватися у наших фахівців на будь-якому етапі будівництва. Переконайтеся в оригінальності проєкту!

    План першого поверху
    Допасуйте до своєї ділянки
    Перший поверх 82.22 (83.36)
    1. Тамбур 2.82
    2. Хол 5.85
    3. Вітальня + їдальня 31.49
    4. Кухня 10.60
    5. Ванна кімната 3.52
    6. Коридор 0.90 (1.71)
    7. Котельня 8.63
    8. Гараж 18.41 (18.74)
    План мансарди
    Мансарда 70.38 (84.66)
    1. Сходи 6.22 (6.22)
    2. Кімната 9.89 (10.65)
    3. Кімната 9.13 (13.28)
    4. Хол 5.73 (5.73)
    5. Пральня 2.72 (3.81)
    6. Гардероб 2.72 (3.78)
    7. Кімната 11.72 (14.22)
    8. Кімната 13.86 (16.36)
    9. Ванна кімната 8.39 (10.61)
    Поверхні
    Корисна площа 125.56 м2
    Поверхня котельні 8.63 м2
    Площа гаража 18.41 м2
    Площа будівництва 113.35 м2
    Площа підлоги 168.02 м2
    Загальна площа 226.7 м2
    Кубатура 757.62 м3
    Висота будинку 8.57 м
    Технологія і конструкція
    Стіни пустотілий керамічний блок 25 см, пінопласт 20 см, штукатурка.
    Конструкція зовнішніх і внутрішніх стін може бути виконана з будь-якого матеріалу (керамічних або газобетонних блоків), з технічними параметрами не нижчими за ті, що зазначені в проєктних рішеннях. Зміна матеріалів має бути узгоджена з адаптаційним архітектором.
    Перекриття Монолітне залізобетонне (відливається за місцем)
    Колінна стінка 128 см
    Дах 2-скатний, Схил 40° , Кроквяна система дерев'яна, покрівля з керамічної черепиці
    Котел на твердому паливі + як варіант, газовий
    Тепла підлога використовується в таких приміщеннях: Перший поверх: Тамбур (1), Кухня (4); Мансарда: Ванна кімната (9)
    Вентиляція гравітаційна
    Фасад Будинок в айдаредах вер.2
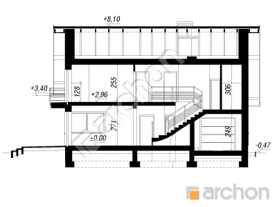
    Розріз
    Проєкт будинку ARCHON+ Будинок в айдаредах вер.2 Розріз будинку
    Контур будівлі
    Проєкт будинку ARCHON+ Будинок в айдаредах вер.2 Ситуація

    Проєкт будинку, що поєднує економічні рішення з сучасними архітектурними деталями, є доказом того, що простий корпус може успішно поєднуватися з привабливою архітектурою. Відкрита L-подібна житлова зона займає майже весь перший поверх: представницька вітальня з каміном та ТВ-зоною, простора кухня з великою кількістю місця для роботи та їдальня. У літні дні крита тераса може також служити як їдальня. Мансарда з високою колінною стіною чудово використовує простір. У будинку чотири комфортабельні кімнати та ванна кімната, пральня та гардероб. Завдяки бічному розташуванню вітальні та освітленню її з трьох боків, проєкт будинку дозволяє довше насолоджуватися сонцем.

    Подібні проєкти:

    Підпишіться на розсилку АРХОН Україна

    Підписатися на розсилку!
    Чат з консультантом