Розсилка
    Відповідні проєкти: 0
    Будинок в айдаредах 5 (Т)
    43 030 UAH

    Проєкт будинку ARCHON+ Будинок в айдаредах 5 (Т) Вид 1

    - 4000 UAH
    Проєкт будинку ARCHON+ Будинок в айдаредах 5 (Т) Вид 1 1/20
    Ціна проєкту:
    39 030 UAH 43 030 UAH
    Проєкт доступний на замовлення
    ДО КІНЦЯ АКЦІЇ ЗАЛИШИЛОСЯ ЩЕ

    Що входить до складу проєкту?


    односімейний котедж одноповерховий з житловою мансардою
    гараж, 5 кімнат, 1 кухня, 2 ванни, комора, 1 котельня, пральня


    Корисна
    площа
    137.49 м2
    Загальна
    площа
    247.36 м2
    кімнат
    5
    кухня
    1
    туалет
    0
    ванни
    2
    гараж
    1

    Увага! Тільки оригінальний проєкт, куплений в компанії «Архон Україна» і у офіційних дилерів, дає Вам гарантію якості і чітке керівництво над будівництвом будинку. Також Ви отримуєте можливість безкоштовно консультуватися у наших фахівців на будь-якому етапі будівництва. Переконайтеся в оригінальності проєкту!

    План першого поверху
    Допасуйте до своєї ділянки
    Перший поверх 90.91 (92.46)
    1. Тамбур 3.28
    2. Хол 5.87
    3. Вітальня + їдальня 31.49
    4. Кухня 11.51
    5. Комора 2.07
    6. Ванна кімната 3.64
    7. Коридор 1.65 (3.20)
    8. Котельня 8.21
    9. Гараж 23.19
    План мансарди
    Мансарда 77.98 (93.90)
    1. Сходи 7.14 (7.14)
    2. Кімната 12.68 (13.62)
    3. Кімната 11.47 (16.61)
    4. Хол 7.18 (7.18)
    5. Пральня 6.09 (8.51)
    6. Кімната 10.26 (12.76)
    7. Кімната 13.94 (16.43)
    8. Ванна кімната 9.22 (11.65)
    Поверхні
    Корисна площа 137.49 м2
    Поверхня котельні 8.21 м2
    Площа гаража 23.19 м2
    Площа будівництва 123.68 м2
    Площа підлоги 186.36 м2
    Загальна площа 247.36 м2
    Кубатура 834.41 м3
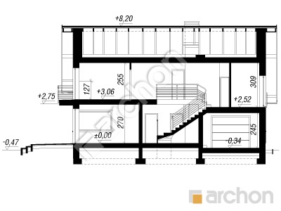
    Висота будинку 8.57 м
    Технологія і конструкція
    Стіни пустотілий керамічний блок 25 см, пінопласт 20 см, штукатурка.
    Конструкція зовнішніх і внутрішніх стін може бути виконана з будь-якого матеріалу (керамічних або газобетонних блоків), з технічними параметрами не нижчими за ті, що зазначені в проєктних рішеннях. Зміна матеріалів має бути узгоджена з адаптаційним архітектором.
    Перекриття Збірно-монолітне Теріва
    Колінна стінка 127 см
    Дах 2-скатний, Схил 40° , Кроквяна система дерев'яна, покрівля з керамічної черепиці
    Котел на твердому паливі + як варіант, газовий
    Тепла підлога використовується в таких приміщеннях: Перший поверх: Тамбур (1), Кухня (4); Мансарда: Ванна кімната (8)
    Вентиляція гравітаційна
    Фасад Будинок в айдаредах 5 (Т)
    Розріз
    Проєкт будинку ARCHON+ Будинок в айдаредах 5 (Т) Розріз будинку
    Контур будівлі
    Проєкт будинку ARCHON+ Будинок в айдаредах 5 (Т) Ситуація

    Цікавий будинок із гаражем, з дуже функціональними рішеннями внутрішнього простору. З центрально розташованого холу можна пройти у вітальню з каміном, обідньою зоною та виходом у сад або у відкриту кухню. Поруч із сходами знаходиться ванна кімната та прохід у гараж та котельню, які разом із коморою складають господарську частину будинку. У мансарді розташовані три затишні дитячі кімнати, спальня батьків, а також пральня та ванна кімната. Оригінально спроєктований будинок із вітальнею, розташованою з боку входу. Частково крита тераса, розташована поруч із кухнею, чудово служитиме як літня їдальня. Широке скління фасаду і облицювання, що використовується, надають будівлі сучасний характер.

    Подібні проєкти:

    Підпишіться на розсилку АРХОН Україна

    Підписатися на розсилку!
    Чат з консультантом