Розсилка
    Відповідні проєкти: 0
    Будинок в сливах 2
    43 030 UAH

    Проєкт будинку ARCHON+ Будинок в сливах 2 Вид 1

    - 3500 UAH
    Проєкт будинку ARCHON+ Будинок в сливах 2 Вид 1 1/22
    Ціна проєкту:
    39 530 UAH 43 030 UAH
    Проєкт доступний відразу
    ДО КІНЦЯ АКЦІЇ ЗАЛИШИЛОСЯ ЩЕ

    Що входить до складу проєкту?


    односімейний котедж одноповерховий з житловою мансардою
    5 кімнат, 1 кухня, 2 ванни, комора, 1 котельня, гардеробна


    Корисна
    площа
    147.94 м2
    Загальна
    площа
    236.88 м2
    кімнат
    5
    кухня
    1
    туалет
    0
    ванни
    2

    Увага! Тільки оригінальний проєкт, куплений в компанії «Архон Україна» і у офіційних дилерів, дає Вам гарантію якості і чітке керівництво над будівництвом будинку. Також Ви отримуєте можливість безкоштовно консультуватися у наших фахівців на будь-якому етапі будівництва. Переконайтеся в оригінальності проєкту!

    План першого поверху
    Допасуйте до своєї ділянки
    Перший поверх 80.55 (84.94)
    1. Тамбур 4.34
    2. Комора 1.71
    3. Кухня 11.02
    4. Вітальня + їдальня 38.84
    5. Кабінет 11.00
    6. Котельня з пральнею 8.52 (12.91)
    7. Ванна кімната 5.12
    План мансарди
    Мансарда 75.91 (93.78)
    1. Сходи 5.95
    2. Коридор 8.32
    3. Ванна кімната 7.52 (12.04)
    4. Кімната 12.83 (14.29)
    5. Гардероб 2.77 (5.52)
    6. Кімната 11.80 (12.18)
    7. Гардероб 4.60 (8.25)
    8. Кімната 15.95 (17.00)
    9. Гардероб 6.17 (10.23)
    Поверхні
    Корисна площа 147.94 м2
    Поверхня котельні 8.52 м2
    Площа будівництва 123.41 м2
    Площа підлоги 178.72 м2
    Загальна площа 236.88 м2
    Кубатура 809.73 м3
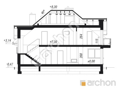
    Висота будинку 8.77 м
    Технологія і конструкція
    Стіни пустотілий керамічний блок 25 см, пінопласт 20 см, штукатурка.
    Конструкція зовнішніх і внутрішніх стін може бути виконана з будь-якого матеріалу (керамічних або газобетонних блоків), з технічними параметрами не нижчими за ті, що зазначені в проєктних рішеннях. Зміна матеріалів має бути узгоджена з адаптаційним архітектором.
    Перекриття Монолітне залізобетонне (відливається за місцем)
    Колінна стінка 115 см
    Дах 4-скатний, Схил 40° , Кроквяна система дерев'яна, покрівля з керамічної черепиці
    Котел газовий
    Тепла підлога використовується в таких приміщеннях: Перший поверх: Тамбур (1), Кухня (3), Вітальня + їдальня (4), Ванна кімната (7); Мансарда: Ванна кімната (3)
    Вентиляція гравітаційна
    Фасад Будинок в сливах 2
    Розріз
    Проєкт будинку ARCHON+ Будинок в сливах 2 Розріз будинку
    Контур будівлі
    Проєкт будинку ARCHON+ Будинок в сливах 2 Ситуація

    На цей раз ми представляємо вам проєкт з популярної колекції «Будинок в сливах» у версії без гаража. Представницький вигляд підкреслює французьке вікно, спроєктоване в передній зоні, в тіні якого знаходиться головний вхід. На тлі легкої штукатурки красиво виглядає дерев'яне облицювання, яке привносить природний акцент і підкреслює сучасний характер будинку. Приваблива тераса частково вписується в арку, тому жителі можуть насолоджуватися відпочинком на свіжому повітрі в будь-яку погоду. Інтер'єр був розроблений для максимального комфорту в домашньому господарстві. Денна зона з цілісним простором поєднує в собі вітальню, вражаючу засклену столову і дуже функціональну кухню з барною стійкою і коморою. Вітальня і їдальня мають прямий вихід на терасу. У другій частині першого поверху знаходиться вітальня, яка також може бути кабінетом або домашньою бібліотекою. Поряд зі сходами знаходиться котельня, в ній можна організувати практичну пральню. У ванній кімнаті на першому поверсі встановлено сучасний душ, і вона добре освітлена природним світлом. У приватній зоні будинку на мансарді жителі мають у своєму розпорядженні три добре освітлені спальні, їх простір розширюється слуховими вікнами. Дві кімнати, серед яких головна спальня, мають гардеробні і виходи на балкони. Більше простору під гардероб гарантує додаткове місце для зберігання. Функціональне планування мансарди також включає в себе зручну, світлу ванну кімнату. Представлений проєкт «Будинок в сливах 2» відноситься до категорії: сучасні проєкти будинків, проєкти будинків з мансардою.

    Реалізації проєкту Будинок в сливах 2
    Подібні проєкти:

    Підпишіться на розсилку АРХОН Україна

    Підписатися на розсилку!
    Чат з консультантом