Розсилка
    Відповідні проєкти: 0
    Будинок в рододендронах 2 вер.2
    39 480 UAH

    Проєкт будинку ARCHON+ Будинок в рододендронах 2 вер.2 Вид 1

    - 3000 UAH
    Проєкт будинку ARCHON+ Будинок в рододендронах 2 вер.2 Вид 1 1/18
    Ціна проєкту:
    36 480 UAH 39 480 UAH
    Проєкт доступний відразу
    ДО КІНЦЯ АКЦІЇ ЗАЛИШИЛОСЯ ЩЕ

    Що входить до складу проєкту?


    односімейний котедж одноповерховий з житловою мансардою
    гараж, 6 кімнат, 1 кухня, 2 ванни, комора, 1 котельня, гардеробна


    Корисна
    площа
    115.11 м2
    Загальна
    площа
    206.53 м2
    кімнат
    6
    кухня
    1
    туалет
    0
    ванни
    2
    гараж
    1

    Увага! Тільки оригінальний проєкт, куплений в компанії «Архон Україна» і у офіційних дилерів, дає Вам гарантію якості і чітке керівництво над будівництвом будинку. Також Ви отримуєте можливість безкоштовно консультуватися у наших фахівців на будь-якому етапі будівництва. Переконайтеся в оригінальності проєкту!

    План першого поверху
    Допасуйте до своєї ділянки
    Перший поверх 73.94 (74.50)
    1. Тамбур 2.93
    2. Хол 2.19
    3. Комора 1.07
    4. Кухня 7.78
    5. Вітальня 23.10
    6. Кімната 9.73
    7. Ванна кімната 4.19 (4.75)
    8. Котельня з пральнею 3.46
    9. Гараж 19.49
    План мансарди
    Мансарда 64.12 (76.53)
    1. Сходи 4.35 (4.35)
    2. Хол 8.34 (8.34)
    3. Ванна кімната 4.71 (5.59)
    4. Кімната 8.80 (11.25)
    5. Кімната 14.54 (16.94)
    6. Кімната 8.35 (10.79)
    7. Кімната 10.99 (13.11)
    8. Гардероб 4.04 (6.16)
    Поверхні
    Корисна площа 115.11 м2
    Поверхня котельні 3.46 м2
    Площа гаража 19.49 м2
    Площа будівництва 103.88 м2
    Площа підлоги 151.03 м2
    Загальна площа 206.53 м2
    Кубатура 672.4 м3
    Висота будинку 8.18 м
    Технологія і конструкція
    Стіни пустотілий керамічний блок 25 см, пінопласт 20 см, штукатурка.
    Конструкція зовнішніх і внутрішніх стін може бути виконана з будь-якого матеріалу (керамічних або газобетонних блоків), з технічними параметрами не нижчими за ті, що зазначені в проєктних рішеннях. Зміна матеріалів має бути узгоджена з адаптаційним архітектором.
    Перекриття Монолітне залізобетонне (відливається за місцем)
    Колінна стінка 109 см
    Дах 2-скатний, Схил 40° , Кроквяна система дерев'яна, покрівля з керамічної черепиці
    Котел газовий
    Тепла підлога використовується в таких приміщеннях: Перший поверх: Кухня (4); Мансарда: Ванна кімната (3)
    Вентиляція гравітаційна
    Фасад Будинок в рододендронах 2 вер.2
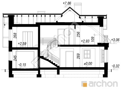
    Розріз
    Проєкт будинку ARCHON+ Будинок в рододендронах 2 вер.2 Розріз будинку
    Контур будівлі
    Проєкт будинку ARCHON+ Будинок в рододендронах 2 вер.2 Ситуація

    Класичний за формою проєкт будинку з гарними пропорціями та привабливим просторовим рішенням інтер'єру. Завдяки гармонійній композиції елементів та правильно підібраним архітектурним деталям корпус будинку виглядає винятково ефектно. Простора повсякденна зона включає вітальню, плавно з'єднану із їдальнею в арці, і кухню з практичною коморою. Перший поверх доповнений додатковою кімнатою, ванною кімнатою та котельнею з функцією пральні, доступною з тамбуру, та гаражем. У мансарді спроєктовані чотири світлі спальні, вбиральня та ванна кімната. Цей проєкт відноситься до категорії: невеликих будинків.

    Подібні проєкти:

    Підпишіться на розсилку АРХОН Україна

    Підписатися на розсилку!
    Чат з консультантом